Nuova Scuola di Via Brocchi

Home > Progetti > Educazione > Nuova Scuola di Via Brocchi

Works

Nuova Scuola di Via Brocchi

Nuova Scuola di Via Brocchi

Un'architettura che educa, un luogo che unisce

Luogo
Milano, Italia
Tipologia
Educazione
Anno
2016 - 2017 (progettazione)
Stato
Opera realizzata
Dimensioni
5.900 mq
Collaboratori
Ing. Vito Avino
Attività
Progettazione ARC - STR - MEP
Credits
Foto: Andrea Zanchi

Descrizione

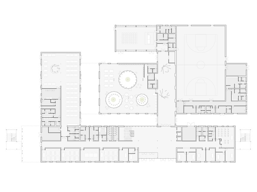
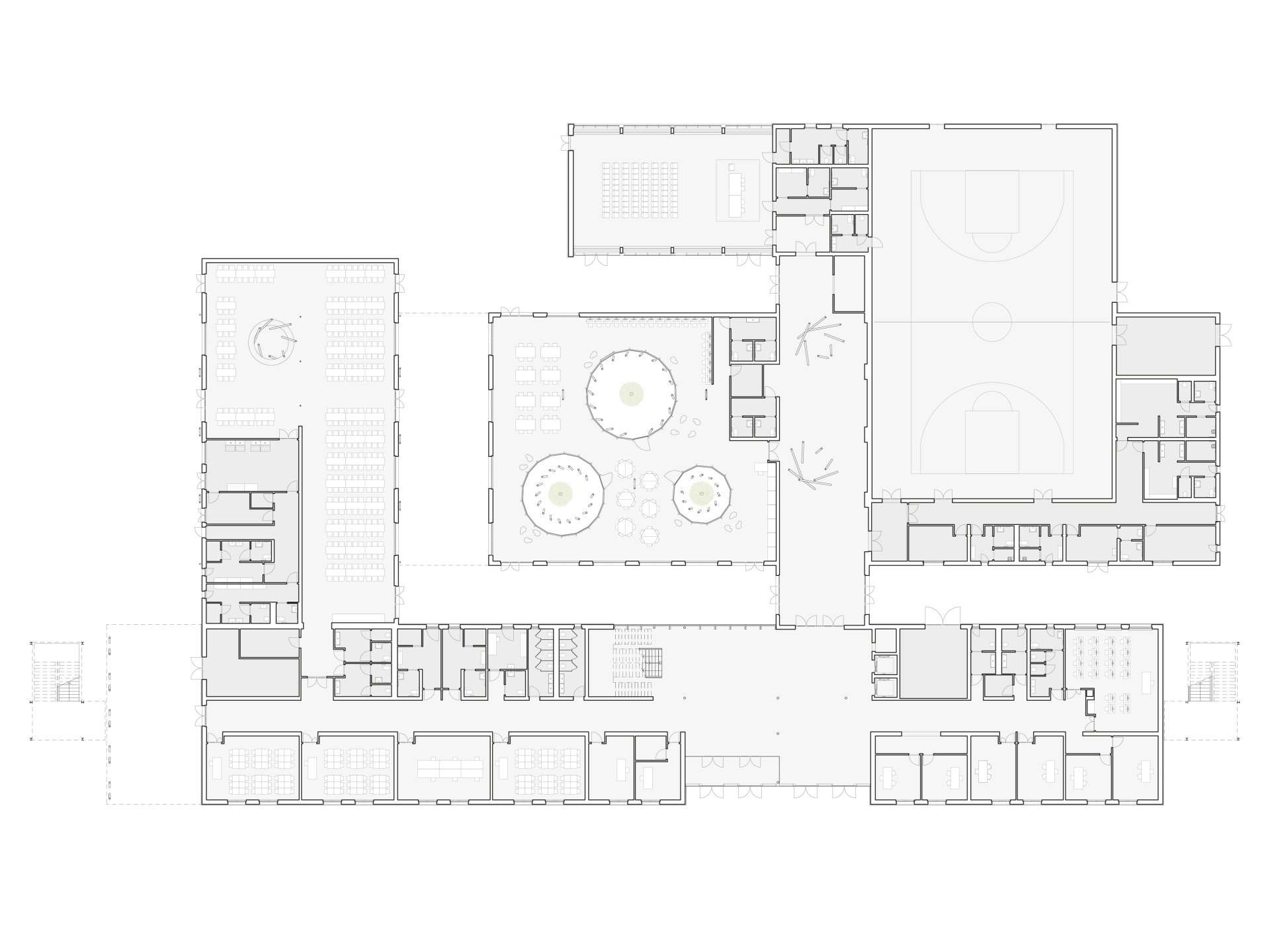
La nuova Scuola di Via Brocchi a Milano interpreta l’architettura scolastica come spazio di apprendimento, relazione e apertura alla comunità, con una forte connessione al contesto urbano e agli spazi verdi circostanti.

Il corpo scolastico si sviluppa attorno a un’ampia agorà, il cuore pulsante dell’edificio, con venti aule, laboratori, spazi interciclo e ambienti inclusivi organizzati in un sistema pensato per favorire orientamento, comunicazione e senso di appartenenza.

Il civic center, con ingresso indipendente, estende la vita della scuola oltre l’orario didattico, accogliendo attività culturali, sportive e sociali. Biblioteca, auditorium e palestra polifunzionale sono progettati come spazi flessibili e condivisi, capaci di sostenere diverse modalità di utilizzo e rafforzare il ruolo della scuola come punto di riferimento per la comunità.

Il rapporto con il verde è un elemento essenziale del progetto: le aree esterne e la copertura praticabile diventano prolungamenti naturali dell’edificio, offrendo percorsi fluidi, spazi di aggregazione, gioco e apprendimento.

L’intervento adotta un approccio sostenibile e innovativo, con struttura in legno X-lam e acciaio e oltre 500 moduli fotovoltaici, progettato per garantire elevata efficienza energetica e ridurre l’impatto ambientale, raggiungendo gli standard di un NZEB (Nearly Zero Energy Building).

Progettata per essere un luogo di vita collettiva, la nuova Scuola si apre al quartiere, diventando un punto di incontro, socialità e apprendimento. L’architettura stessa si fa strumento educativo e culturale, capace di coniugare funzionalità, estetica e sostenibilità, e di accompagnare gli alunni e la comunità nella costruzione di relazioni e esperienze condivise.

Nuova Scuola di Via Brocchi

Focus

Una Scuola e Civic Center progettati in sinergia con il contesto urbano e le esigenze contemporanee degli spazi per l’apprendimento.

Nuova Scuola di Via Brocchi