Forte dei Marmi School Complex

Home > Progetti > Education > Forte dei Marmi School Complex

Works

Forte dei Marmi School Complex

Forte dei Marmi School Complex

In the shadow of the Apuan Alps, a school in harmony
with the environment

Location
Forte dei Marmi, Italy
Typology
Education
Year
2021 - ongoing
Status
Design in progress
Dimensions
2.700 sqm
Client
Municipality of Forte dei Marmi
Activities
AR – ST – MEP design

Description

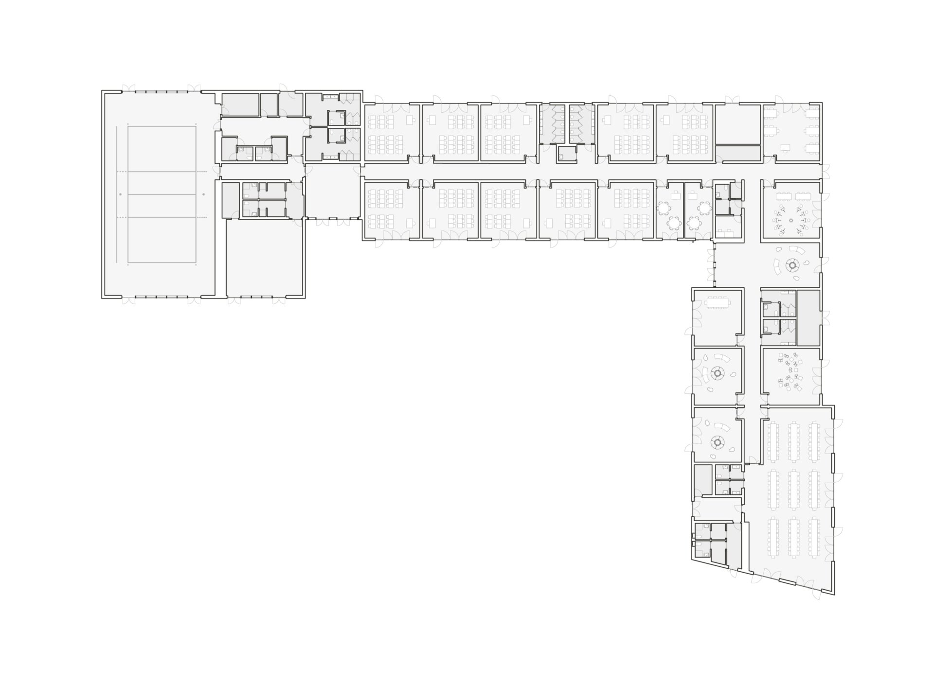
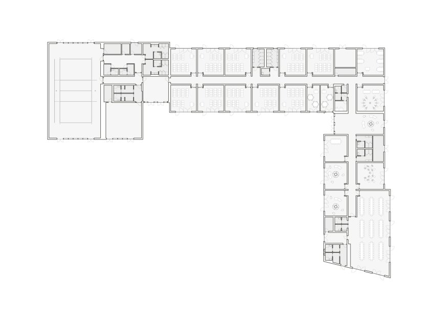
The project for the new school complex in Forte dei Marmi stems from a process of integrating the teaching experience within a landscape with a marked rural character. The silhouette of the roof recalls the movement of the Apuan Alps, a green horizon that covers and protects the school premises.

The functional layout establishes a continuous dialogue with nature and optimizes the flows inside and towards the building. The new school complex presents itself as the repository of an open and shared heritage of knowledge that goes beyond the physical boundaries of built architecture, inserting itself into the social fabric as an emotionally connoted reference.

Forte dei Marmi School Complex

Focus

The project is a synthesis of the dialogue between the natural and urban context, a place of education oriented towards inclusiveness.

Forte dei Marmi School Complex
Photogallery